| 材料 |
?????? 介質溫度℃ |
材料 |
介質溫度℃ |
| 氯化聚氯乙烯(PVC-C) |
-20℃~+95℃ |
聚氯乙烯(PVC-U) |
-5℃~+45℃ |
| 增強聚丙烯(FRPP) |
-20℃~+120℃ |
均聚聚丙烯(PPH) |
-20℃~+110℃ |
| 聚偏二氟乙烯(PVDF) |
40℃~+150℃ |
|
|
?
1. 泵經長途運輸到達生產場地,安裝前應開箱檢驗,泵機零部件是否完好無損,緊固件如有松動,應重新緊固,檢查泵軸與電機軸的同心度,如有松動應予校正。
2. 泵體全部為 PVDF、FRPP 樹脂注塑成形,輸出管路上應有支撐架或吊架,不能全靠法蘭承受壓力,以防變形損壞;進口管路要盡量減少管路水損失,90°彎頭不應超過兩個。FP、FV 型離心泵應在吸入管前端裝上底閥,以保證泵在啟動前泵體內充滿液體;吸入管口或底閥進口應裝濾網,或在進口處裝一個過濾器,以防止雜物吸入泵體,保證泵能正常運轉。
3. 泵體連接點螺栓要均勻擰緊,進出管口連接嚴密,不能漏氣,否則會影響抽真空,吸不出液體,或在造成流量、揚程不足等弊端。
?
?

軸聯式離心泵裝配明細圖
|
件號
|
名稱
|
材質
|
|
1
|
密封圈
|
EPDM,FPM
|
|
2
|
出口法蘭
|
FRPP,PVDF
|
|
3
|
密封圈
|
EPDM,FPM
|
|
4
|
密封圈g
|
EPDM,FPM
|
|
5
|
冷卻水嘴?
|
鋼
|
|
6
|
雙頭螺柱
|
鋼、不繡鋼
|
|
7
|
油孔塞
|
FRPP
|
|
8
|
連接軸
|
鋼?
|
|
9
|
連軸器
|
鑄鐵
|
|
10
|
銘牌?
|
鋁
|
|
11
|
支架
|
FRPP/鑄鐵PVDF/鑄鐵
|
|
12
|
機械密封動環(huán)
|
碳化硅
|
|
13
|
冷卻蓋
|
FRPP
|
|
14
|
機械密封靜環(huán)
|
碳化硅
|
|
15
|
泵蓋
|
FRPP,PVDF
|
|
16
|
密封膠片
|
EPDM,FPM
|
|
17
|
葉輪
|
FRPP/ 鋼PVDF 鋼
|
|
18
|
泵體
|
FRPP,PVDF
|
|
19
|
進口法蘭
|
FRPP,PVDF
|

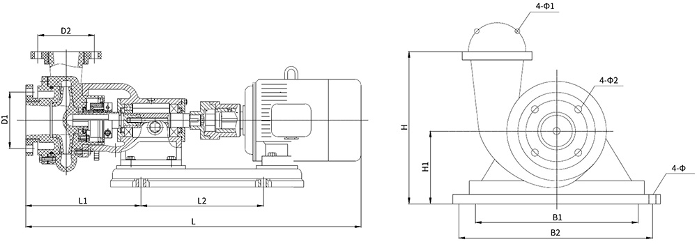
安裝尺寸? ? ? ? ? ? ? ? ? ? ? ? ? ? ? ? ? ? ? ? ? ? ? ? ? ? ? 單位 :mm
|
型號/尺寸
|
安裝尺寸
|
進口法蘭
|
出口法蘭
|
|
L
|
L1
|
L2
|
B1
|
B2
|
H
|
H1
|
4-Φ
|
D1
|
n-Φ2
|
D2
|
n-Φ1
|
|
40F
|
p |
(D)-25 |
830
|
185 |
415
|
245
|
340
|
310
|
170
|
4-16
|
110
|
4-18
|
100
|
4-18
|
| v |
|
50F
|
p |
(D)-28 |
840
|
300
|
430
|
250
|
340
|
322
|
170
|
4-16
|
125
|
4-18
|
110
|
4-18
|
| v |
|
65F
|
p |
(D)-26 |
850
|
295
|
430
|
250
|
340 |
345
|
182
|
4-16
|
145
|
4-18
|
125
|
4-18
|
| v |
|
80F
|
p |
(D)-30 |
960
|
330
|
430
|
250
|
340
|
380
|
185
|
4-16
|
160
|
8-18
|
145
|
4-18
|
| v |
|
80F
|
p |
(D)-32 |
960
|
330
|
430 |
250 |
340
|
380
|
185
|
4-16
|
160
|
8-18
|
145
|
4-18
|
| v |
|
100F
|
p |
(D)-20 |
1140
|
275
|
635
|
285
|
405
|
450
|
250
|
4-18
|
180
|
8-18
|
160
|
8-18
|
| v |
|
100F
|
p |
(D)-32 |
1200 |
275
|
635
|
285
|
405
|
450
|
250
|
4-18
|
180
|
8-18
|
160
|
8-18
|
| v |
?