| 材料 |
?????? 介質溫度℃ |
材料 |
介質溫度℃ |
| 氯化聚氯乙烯(PVC-C) |
-20℃~+95℃ |
聚氯乙烯(PVC-U) |
-5℃~+45℃ |
| 增強聚丙烯(FRPP) |
-20℃~+120℃ |
均聚聚丙烯(PPH) |
-20℃~+110℃ |
| 聚偏二氟乙烯(PVDF) |
40℃~+150℃ |
|
|
1.輕便:PVC-U 材料的比重只有鑄鐵的 1/10,運輸,安裝簡易,降低成本;
2.抗化學性優越:PVC-U 具有優良的抗酸堿性能,除接近飽和點強酸堿外;
3.耐用:抗候性優良,也不能被細菌及菌類所腐化;
4.不導電:PVC-U 材料不能導電,也不受電解,電流的腐蝕,應此無需二次加工。不能燃燒,也不助燃,沒有消防顧慮;
5.阻力小,流率高:內壁光滑,流體流動性損耗小,加以污垢不易附著在平滑管壁,保養較為簡易,保養費用較低;
6.安裝簡易,成本低廉:切割及聯接都很簡易,使用 PVC 膠水聯接實踐證明安全可靠,操作簡便,成本低廉。

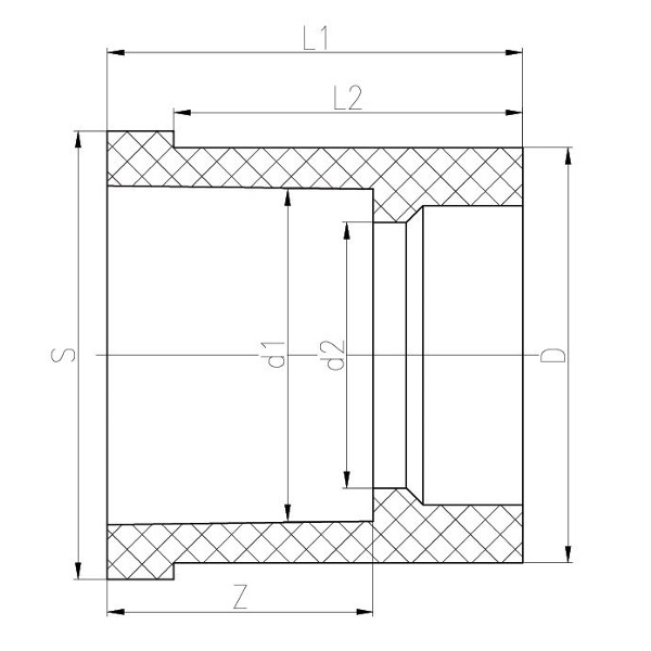
公稱直徑 DN |
D |
d1 |
d2 |
L1 |
L2 |
Z |
S |
| 150*100 |
160? |
110? |
106? |
100? |
86? |
61? |
164.5? |
| 150*125 |
160? |
140? |
136? |
100? |
86? |
76? |
164.5? |
| 200*150 |
225? |
160? |
155? |
135? |
119? |
86? |
228.5? |
| 250*50 |
280? |
63? |
60? |
146? |
128? |
37.5? |
285? |
| 250*200 |
280? |
225? |
210? |
146? |
128? |
119? |
285? |
| 300*250 |
315? |
280? |
265? |
178? |
158? |
131? |
324? |
| 350*250 |
355? |
280? |
270? |
199? |
184? |
146? |
355? |
| 350*300 |
355? |
315? |
304? |
199? |
184? |
164? |
355? |
| 400*150 |
400? |
160? |
154? |
221? |
206? |
86? |
400? |
| 400*250 |
400? |
280? |
270? |
221? |
206? |
146? |
400? |
| 400*350 |
400? |
355? |
340? |
221? |
206? |
184? |
400? |
公稱直徑 DN |
D |
d1 |
d2 |
L1 |
L2 |
Z |
S |
| 20*15 |
25? |
20? |
16.5? |
25? |
21? |
16? |
27.5? |
| 25*15 |
32? |
20? |
16.5? |
27? |
22? |
16? |
35? |
| 25*20 |
32? |
25? |
21? |
27? |
22? |
19? |
35? |
| 32*15 |
40? |
20? |
16.5? |
32? |
26? |
16? |
42.5? |
| 32*20 |
40? |
25? |
21? |
32? |
26? |
18? |
42.5? |
| 32*25 |
40? |
32? |
27.5? |
32.5? |
26.5? |
21.5? |
42.5? |
| 40*15 |
50? |
20? |
16.5? |
39? |
31? |
16? |
54? |
| 40*20 |
50? |
25? |
21? |
39? |
31? |
19? |
54? |
| 40*25 |
50? |
32? |
28? |
39? |
31? |
22? |
54? |
| 40*32 |
50? |
40? |
36? |
39? |
31? |
26? |
54? |
| 50*15 |
63? |
20? |
16.5? |
47? |
38? |
16? |
67? |
| 50*20 |
63? |
25? |
21? |
47? |
38? |
19? |
67? |
| 50*25 |
63? |
32? |
28? |
47? |
38? |
22? |
67? |
| 50*32 |
63? |
40? |
36? |
47? |
38? |
26? |
67? |
| 50*40 |
63? |
50? |
46? |
47? |
38? |
31? |
67? |
| 65*25 |
75? |
32? |
28? |
53? |
44? |
22? |
79? |
| 65*32 |
75? |
40? |
36? |
53? |
44? |
26? |
79? |
| 65*40 |
75? |
50? |
46? |
53? |
44? |
31? |
79? |
| 65*50 |
75? |
63? |
58.5? |
53? |
44? |
38? |
79? |
| 80*32 |
90? |
40? |
35.5? |
61? |
51? |
26? |
93.5? |
| 80*40 |
90? |
50? |
46? |
61? |
51? |
31? |
93.5? |
| 80*50 |
90? |
63? |
59? |
61? |
51? |
38? |
93.5? |
| 80*65 |
90? |
75? |
70? |
61? |
51? |
43.5? |
93.5? |
| 100*32 |
110? |
40? |
35.5? |
72.5? |
60.5? |
31? |
113.5? |
| 100*40 |
110? |
50? |
46? |
73? |
61? |
31? |
113.5? |
| 100*50 |
110? |
63? |
59? |
73? |
61? |
38? |
113.5? |
| 100*65 |
110? |
75? |
71? |
73? |
61? |
44? |
113.5? |
| 100*80 |
110? |
90? |
84? |
73? |
61? |
49? |
113.5? |
| 125*50 |
140? |
63? |
60? |
88? |
76? |
38? |
144? |
| 125*80 |
140? |
90? |
85? |
88? |
76? |
56? |
144? |
| 125*100 |
140? |
110? |
105? |
88? |
76? |
61? |
144? |
| 150*50 |
160? |
63? |
60? |
100? |
86? |
38? |
165? |